Dom wolnostojący w Dobrej Szczecińskiej Dobra (Szczecińska), Dobra

5 pokoi
131.29 m²
9 901,74 zł/m2
KNG-DS-12368
Powiadom o spadku ceny

1 300 000 zł

Dom wolnostojący w Dobrej Szczecińskiej

Szczegóły oferty

Symbol oferty KNG-DS-12368
Powierzchnia 131,29 m²
Powierzchnia użytkowa [m2] 131,29 m²
Powierzchnia działki [m2] 1 105 m²
Powierzchnia balkonów/tarasów 30,00 m²
Liczba pokoi 5
Liczba sypialni 3
Rodzaj domu wolnostojący
Technologia budowlana ytong
Liczba pięter w budynku 1
Garaż brak
Okna nowe PCV
Ukształtowanie działki płaska
Kształt działki trapez
Pokrycie dachu dachówka ceramiczna
Rok budowy 2025
Gaz w drodze przy działce
Woda studnia
Dojazd droga szutrowa
Otoczenie zabudowa jednorodzinna
Ogrzewanie pompa ciepła
Tarasy jest
Prąd w drodze przy działce
Kanalizacja szambo
Pomieszczenia
Rodzaj kuchni aneks kuchenny - połączony z salonem

Opis nieruchomości

Oferta sprzedaży wolnostojącego domu w atrakcyjnej lokalizacji w Dobrej Szczecińskiej o powierzchni użytkowej 131,29 m2, nieruchomość posadowiona na działce o pow. 1105 m2. Nowoczesny i ekologiczny budynek przeznaczony dla rodziny 4-6 osobowej, niepodpiwniczony, zewnętrzne dwa miejsca parkingowe. 

Ergonomiczny dom, zaprojektowany z myślą o praktycznych aspektach użytkowania, utrzymany w stylistyce nowoczesnej stodoły. Posiada duże przeszklenia w elewacjach bocznych, co sprawia że jest bardzo słoneczny i przytulny. Przeszklenia wraz z tarasem i ogrodem od strony południowo-zachodniej, widok na pola i lasy dzięki braku sąsiadujących działek budowlanych, dla osób ceniących prywatność.   

Do marketów typu biedronka, netto oraz szkoły podstawowej 800 m, komunikacja miejska w odległości 300 m. Dojazd do planowanej Zachodniej Obwodnicy Szczecina 5 min samochodem. 

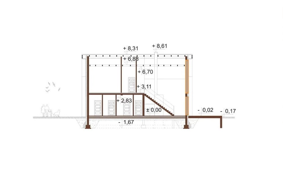
Układ pomieszczeń został podzielony na strefę dzienną na parterze oraz nocną na poddaszu użytkowym:

Parter (strefa dzienna):

  • Wiatrołap
  • Pokój dzienny 
  • Kl. schodowa 
  • WC
  • Kotłownia/pralnia 
  • Łazienka 
  • Garderoba 
  • Sypialnia 

Z salonu można wyjść na taras i ogród, a także przejść na antresolę. Obok schodów na poddasze jest WC, a za nim pomieszczenie w którym jest kotłownia i pralnia. Ponadto wiatrołap, sypialnia z prywatną łazienką i garderobą.

Poddasze użytkowe (strefa nocna): 

  • Hol + kl. schodowa
  • Łazienka 
  • Sypialnia 
  • Sypialnia 
  • Gabinet

MOŻLIWOŚĆ NABYCIA NIERUCHOMOŚCI W STANIE SUROWYM OTWARTYM W CENIE 900 000 zł, A TAKŻE WPROWADZENIA NA TYM ETAPIE BUDOWY INDYWIDUALNYCH MODYFIKACJI NA ŻYCZENIE KLIENTA.  


STANDARD WYKOŃCZENIA W STANIE DEWELOPERSKIM:
  • fundamenty na ławach, docieplenie XPS 12 cm, wykończenie żywicą w kolorze grafitowym, 
  • ściany konstrukcyjne: WIENEBERGER PROFI 24, styropian grafitowy 20 cm, putz WEBBER,
  • dach: więźba drewniana, dachówka ceramiczna płaska CREATON, izolacja wełna ISOVER 15 cm 0,37
  • strop: drewniany, wełna 15 cm ISOVER 0,37
  • tynki, sufity: płyty GK
  • okna: 3 szybowe, ciepłe, antracyt, panoramiczne, witryny
  • drzwi: stalowe, ocieplone, antracyt
  • posadzki: betonowe, docieplenie 20 cm styropian grafitowy EPS 100, folia aluminiowa odbijająca ciepło
  • ogrzewanie: podłogowe, pompa ciepła
  • instalacje wod-kan: własna studnia z systemami filtracyjnymi, zbiornik bezodpływowy 10m3 (ograniczenie kosztów za wywóz odpadów)
  • standard wykończenia obejmuje: parapety zewnętrzne, parapety wewnętrzne, ogrodzenie całościowe, utwardzone powierzchnie parkingowe, oświetlenie zewnętrzne na budynku, wyrównanie terenu.
Ogrzewanie dzięki pompie ciepła wraz z ogrzewaniem podłogowym. Nieruchomość jest niezwykle energooszczędna, wskaźnik EP wynosi 3.74 kWh/(mm2·rok).

Instalacje elektryczne: 3 fazowe, doprowadzona instalacja pod fotowoltaikę z magazynem energii, panele fotowoltaiczne 10 kWh + magazyn energii 15kWh w cenie. Powierzchnia dachu pod panele fotowoltaiczne od strony południowej.


Termin wydania: koniec inwestycji do stanu deweloperskiego: 8 miesięcy (od podpisania umowy).


Zachęcam do kontaktu telefonicznego w celu uzyskania bardziej szczegółowych informacji oraz umówienia prezentacji. 

Podobne oferty

Dom wolnostojący w sąsiedztwie lasu.

Dobra (Szczecińska), Dobra

4 pokoje 178 m2 8 983,15 zł/m2

Proszę wprowadzić poprawne imię i nazwisko
Proszę wprowadzić poprawny numer telefonu
Proszę wprowadzić poprawny adres e-mail
Proszę zaznaczyć wymagane zgody