Mieszkanie na wynajem Szczecin, Warszewo

3 pokoje
58.60 m²
54,61 zł/m2
1 piętro
KNG-MW-12392
Powiadom o spadku ceny

3 200 zł

Mieszkanie na wynajem
Nowa oferta

Szczegóły oferty

Symbol oferty KNG-MW-12392
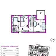
Powierzchnia 58,60 m²
Powierzchnia użytkowa [m2] 58,60 m²
Powierzchnia balkonów/tarasów 8,00 m²
Liczba pokoi 3
Liczba sypialni 2
Rodzaj budynku niski budynek
Technologia budowlana cegła + styropian
Kaucja zabezp. 5000
Standard
Opłaty w czynszu Części wspólne, fundusz remontowy, monitoring, ochrona, odśnieżanie, ogrzewanie, Parking, prąd, Winda, woda ciepła i zimna, woda/ryczałt na wodę, zaliczka na fundusz remontowy, zarząd
Piętro 1
Liczba pięter w budynku 4
Garaż miejsce garażowe
Piwnica [m2] 5,00 m²
Stan lokalu bardzo dobry
Mies. czynsz admin. 520 PLN
Czynsz zimowy 520 PLN
Okna nowe PCV
Balkon taras
Liczba tarasów 1
Rok budowy 2022
Plac zabaw tak
Widok na inne budynki
Gaz brak
Woda ciepła - miejska
Dojazd asfaltowa/kostka
Otoczenie budynki mieszkalne
Ogrzewanie centralne
Umeblowanie tak
Alarm tak
Winda tak
Liczba wind 1
Tarasy taras
Usytuowanie jednostronne
Klucze tak
Pomieszczenia
Powierzchnia pokoi 27,5m2; 10,5m2; 9,5m2 m2
Typ kuchni jasna z oknem
Rodzaj kuchni kuchnia wyposażona
Powierzchnia kuchni 6 m2
Typ łazienki razem z wc
Liczba łazienek 1
Powierzchnia łazienki [m2] 5 m2
Glazura łazienki nowego typu
Wyposażenie łazienki natrysk, ogrzewanie podłogowe, pralka, umywalka, WC
Liczba przedpokoi 1
Powierzchnia przedpokoi 6 m2

Opis nieruchomości

OFERTA NA WYŁĄCZNOŚC - KLUCZE W BIURZE

OFERTA WYNAJMU NOWEGO TRZYPOKOJOWEGO MIESZKANIA, POŁOŻONEGO W SZCZECINIE - DZIELNICA WARSZEWO OS. MAŁE BŁONIA ( POD PAPUGAMI). BUDYNEK Z 2022r. MONITORING I WIDNA. NIERUCHOMOŚĆ O POWIERZCHNI UŻYTKOWEJ 58m2 + TARAS 8m2 + MIEJSCE PARKINGOWE Z ZAPLECZEM I KOMÓRKA LOKATORSKA (300zł miesięcznie dodatkowej opłaty). 



W skład mieszkania wchodzi:


- salon z aneksem kuchennym ( nowoczesna zabudowa ze sprzętem AGD) 
- dwie oddzielne sypialnie 
- łazienka z toaletą (pralka na wyposażeniu)
- przedpokój z szafą w zabudowie

Mieszkanie umeblowane i wyposażone zgodnie z dokumentacją fotograficzną. 


Czynsz najmu 3.500zł ( razem z garażem) + opłata do zarządcy 520 zł/mies ( woda, śmieci, administracja, monitoring, winda), dodatkowo SEC. (ogrzewanie i ciepła woda) zimą ok. 380 zł/mies. , lato 110 zł/mies.  + prąd ok. 350zł za dwa miesiące.

Kaucja zabezpieczająca 5.000zł płatna przy podpisaniu umowy najmu. Minimalny okres najmu 12mies. 

Mieszkanie do wydania od ręki. 

 

Podobne oferty

Mieszkanie na wynajem

Szczecin, Warszewo

4 pokoje 130 m2 26,92 zł/m2
Nowa oferta

Mieszkanie na wynajem

Szczecin, Warszewo

2 pokoje 56 m2 40,32 zł/m2
Nowa oferta

Proszę wprowadzić poprawne imię i nazwisko
Proszę wprowadzić poprawny numer telefonu
Proszę wprowadzić poprawny adres e-mail
Proszę zaznaczyć wymagane zgody